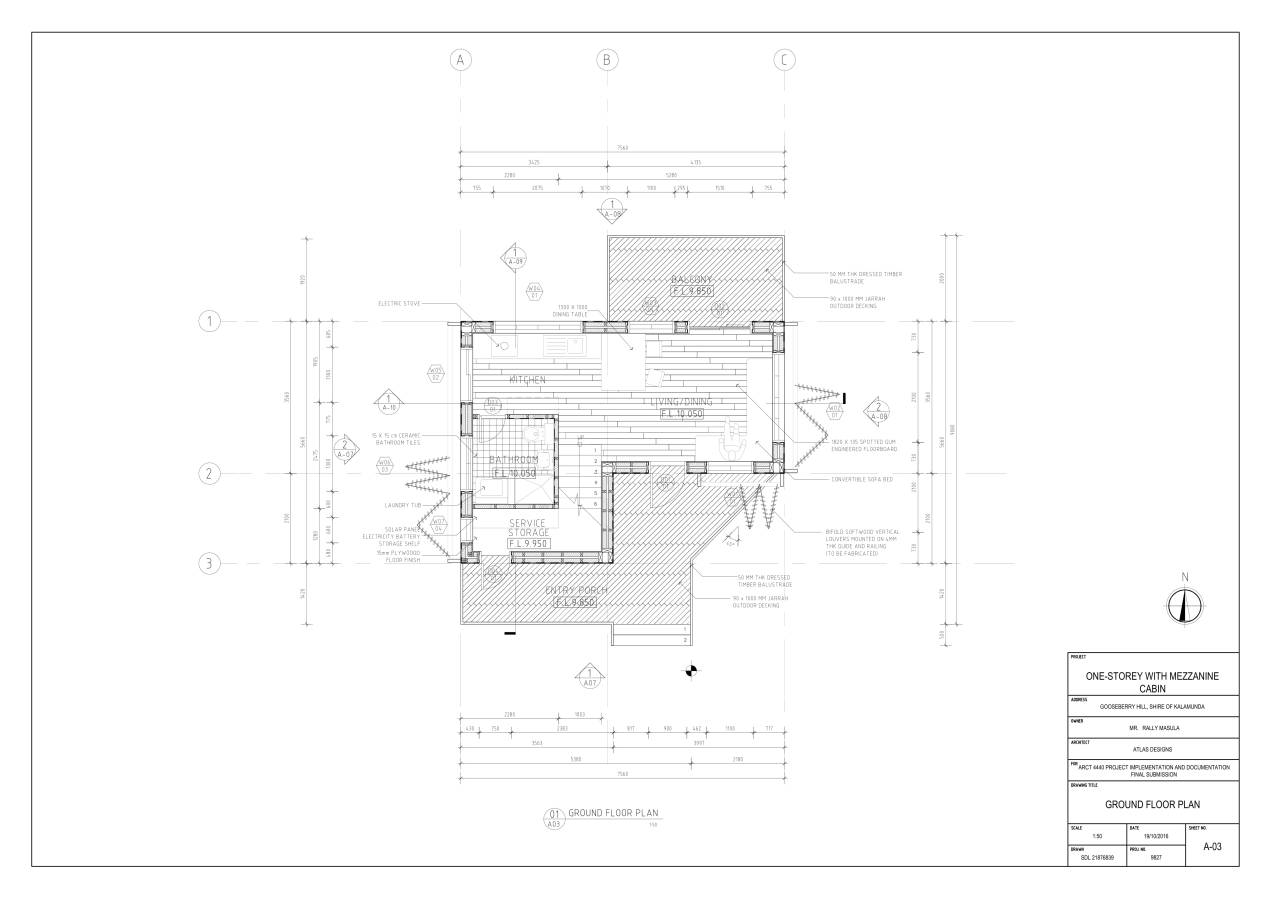
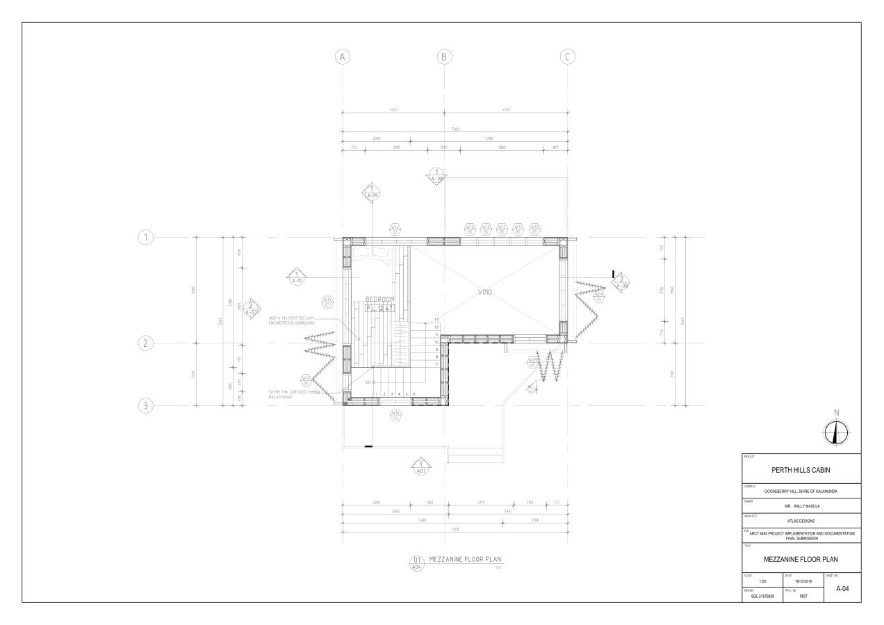
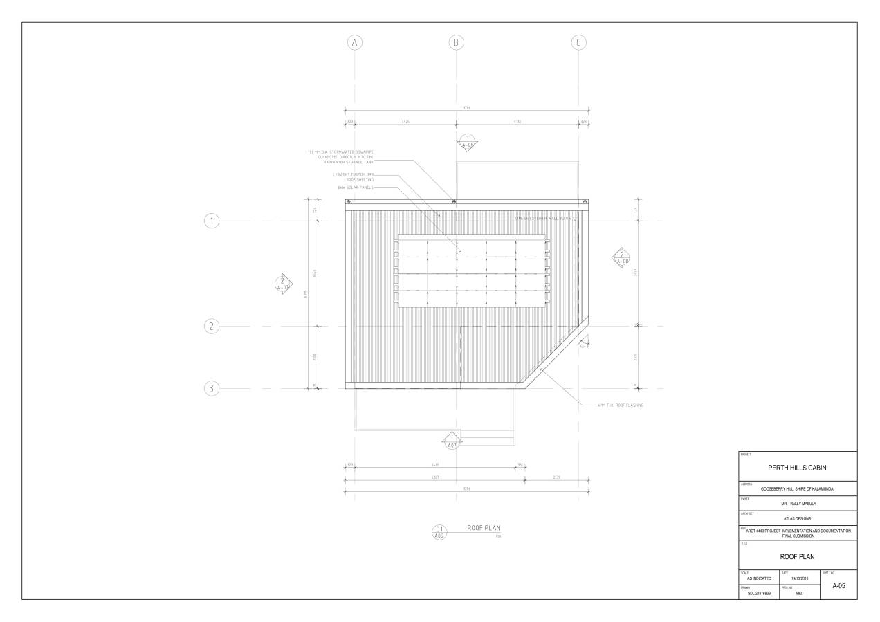
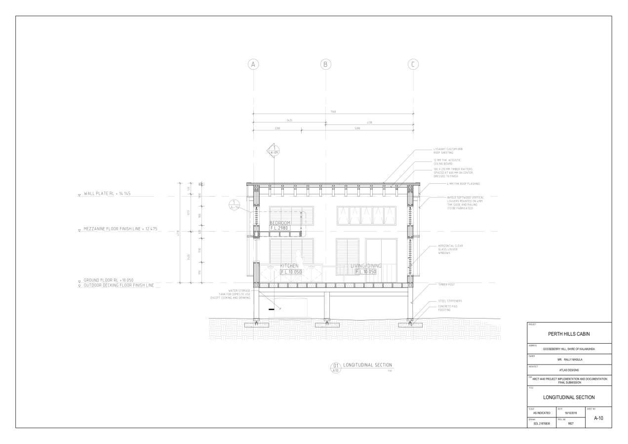
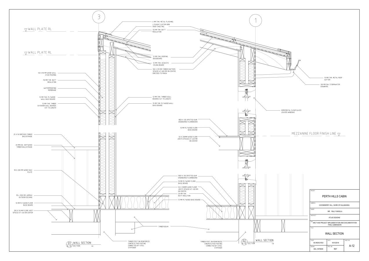
Cabin project for Project Implementation and Documentation unit. We are briefed to design an environmentally sustainable cabin in Perth Hills (specific site to be chosen individually), away from the city, able to sustain itself by the use of renewable energy sources. The main feature of my design is the use of foldable, accordion facade using softwood that faces the East, West, and South. It is where unwanted sun comes from during summer, and extreme winds during winters. Also, it will act as a double facade to passively insulate the cabin.










